NEWドルミハイツ垂水A棟404号室670万円
マンション
概要
- 住所
- 神戸市垂水区学が丘3丁目4-1
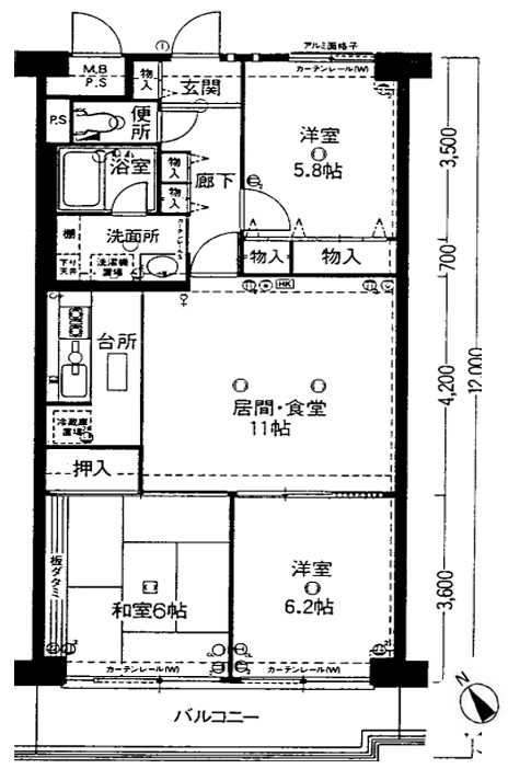
- 間取り
- 3LDK
- 土地面積
- 0.00㎡
- 販売価格
- 670万円
- 毎月
- 18,112円
※毎月支払い額は、頭金・ボーナス0円35年変動金利0.625%にて計算。
物件詳細
- 物件種目
- 中古マンション
- 最寄り駅
- JR「舞子駅」
- 間取りタイプ
- 3LDK
- 販売価格
- 670万円
- 住所
- 神戸市垂水区学が丘3丁目4-1
- 徒歩何分
- JR「舞子駅」バス19分
- 土地面積
- 0.00㎡
- 専有面積
- 72.00㎡
- 土地権利
- 所有権
- 地目
- 宅地
- 都市計画
- 市街化区域
- 用途地域
- 第1種中高層住居専用地域
- 専有面積
- 0.00㎡
- 現況
- 空家
- 引渡日
- 即時
- 駐車場
- 空有(5,000~6,000円)
- その他費用
- 管理費6,260円・修繕積立金12,240円
GALLERY
ギャラリー
※クリックすると拡大します




















メール
電話