NEWプレステージ明石魚住Ⅲ606号室700万円
マンション
概要
- 住所
- 明石市魚住町清水1928
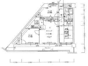
- 間取り
- 3LDK
- 土地面積
- 0.00㎡
- 販売価格
- 700万円
- 毎月
- 18,923円
※毎月支払い額は、頭金・ボーナス0円35年変動金利0.625%にて計算。
物件詳細
- 物件種目
- 中古マンション
- 最寄り駅
- JR[土山駅]
- 間取りタイプ
- 3LDK
- 販売価格
- 700万円
- 住所
- 明石市魚住町清水1928
- 徒歩何分
- JR[土山駅]徒歩17分
- 土地面積
- 0.00㎡
- 専有面積
- 68.93㎡
- 土地権利
- 所有権
- 地目
- 宅地
- 都市計画
- 市街化区域
- 用途地域
- 第1種中高層住居専用地域
- 専有面積
- 0.00㎡
- 現況
- 空室
- 引渡日
- 相談
- 駐車場
- 空無
- その他費用
- 管理費8,800円・修繕積立金12,860円・バイク置場1,000円・駐輪場150円
GALLERY
ギャラリー
※クリックすると拡大します





















メール
電話