NEWライオンズマンション明石大久保208号室2,599万円
マンション
概要
- 住所
- 明石市大久保町大久保町306
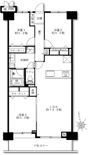
- 間取り
- 3LDK
- 土地面積
- 0.00㎡
- 販売価格
- 2,599万円
- 毎月
- 70,259円
※毎月支払い額は、頭金・ボーナス0円35年変動金利0.625%にて計算。
物件詳細
- 物件種目
- 中古マンション
- 最寄り駅
- JR[大久保駅]
- 間取りタイプ
- 3LDK
- 販売価格
- 2,599万円
- 住所
- 明石市大久保町大久保町306
- 徒歩何分
- JR[大久保駅]徒歩8分
- 土地面積
- 0.00㎡
- 専有面積
- 75.03㎡
- 土地権利
- 所有権
- 地目
- 宅地
- 都市計画
- 市街化区域
- 用途地域
- 第1種中高層住居専用地域
- 専有面積
- 0.00㎡
- 現況
- 空室
- 引渡日
- 即時可
- 駐車場
- 空無(5,000~7,000円)
- その他費用
- 管理費8,000円・修繕積立金10,500円・バイク置場200~500円・自転車置場500円
GALLERY
ギャラリー
※クリックすると拡大します





















メール
電話