NEW加古川市尾上町長田新築戸建2,990万円
新築戸建
概要
- 住所
- 加古川市尾上町長田43-6
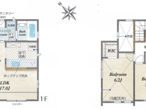
- 間取り
- 4LDK+WIC
- 土地面積
- 127.82㎡
- 販売価格
- 2,990万円
- 毎月
- 80,828円
※毎月支払い額は、頭金・ボーナス0円35年変動金利0.625%にて計算。
物件詳細
- 物件種目
- 新築戸建
- 最寄り駅
- 山陽電鉄本線「浜の宮駅」
- 間取りタイプ
- 4LDK+WIC
- 販売価格
- 2,990万円
- 住所
- 加古川市尾上町長田43-6
- 徒歩何分
- 山陽電鉄本線「浜の宮駅」徒歩11分
- 土地面積
- 127.82㎡
- 専有面積
- 0.00㎡
- 土地権利
- 所有権
- 地目
- 宅地
- 都市計画
- 市街化区域
- 用途地域
- 第1種中高層住居専用地域
- 建ぺい率
- 60%
- 容積率
- 200%
- 専有面積
- 0.00㎡
- 現況
- 建築中
- 引渡日
- 令和8年2月下旬予定
- 設備
- 公営水道・本下水・オール電化・関西電力
- 駐車場
- 3台可(車種による)
GALLERY
ギャラリー
※クリックすると拡大します























メール
電話